Our IDS series cold room sliding doors feature a heavy-duty aluminium rail system. We’ve designed them with composite rollers equipped with large-diameter ball bearings for smooth movement of the door leaf. For door leaves up to 1100 mm in width, we use fixed composite handles. We supply stainless steel lever handles on the sliding door leaves, suitable for wider and larger door openings. The standard door leaf surface is finished in RAL9002 arctic white colour, achieved through powder coating. Optionally, we also offer a stainless steel finish. The IDS60 and IDS80 doors are available in a double-leaf design as well.
IglooDoors® produts are protected by RCD (Registered Community Design) rights, unauthorized replication of the products or infringement of the design right may result in legal consequences.
IDS60
single leaf sliding door
Recommended for positive temperatures
+12 / +18 °C
Our introductory model, IDS60, is an ideal choice for cooler environments, such as fresh-keeping rooms, operating between +12 and +18 degrees Celsius. We especially recommend sliding doors for scenarios where large items need to be moved within the cooling area. This design facilitates easy access for larger vehicles or equipment, enhancing mobility and efficiency in your cold room operations.
Leaf thickness: 60 mm
Leaf structure: Single sliding leaf with aluminium edges
Sliding rail type: Heavy-duty aluminium rail with overrun stops
Wheels: Ball bearing, reinforced, large dimension composite rollers
Door openers: Composite fix handles up to 1100mm, stainless steel lever handle above 1100 mm
Standard leaf surface: Galvanized steel RAL9002 arctic white powder coated
IDS60-2
double leaf sliding door
Recommended for positive temperatures
+12 / +18 °C
Our introductory model’s double-leaf variant, the IglooDoors® IDS60-2, is a perfect choice for cooler, fresh-keeping environments operating between +12 and +18 degrees Celsius. We particularly recommend double-leaf sliding doors for situations involving the regular movement of especially large items. This design ensures easy access and enhances the efficiency of moving large vehicles or equipment within the cooling area, thereby optimizing mobility and workflow in your cold room operations.
Leaf thickness: 60 mm
Leaf structure: Double leaf with aluminium edges
Sliding rail type: Heavy-duty aluminium rail with overrun stops
Wheels: Ball bearing, reinforced, large dimension composite rollers
Door openers: Composite fix handles up to 1100 mm, stainless steel lever handles above 1100 mm
Standard leaf surface: Galvanized steel RAL9002 arctic white powder coated
IDS80
single leaf sliding door
Recommended for positive temperatures
0 / +10 °C
The IglooDoors® IDS80 sliding doors feature a robust 80 mm thick door leaf, ensuring efficient thermal insulation for cold rooms operating between 0 and +10 degrees Celsius. These sliding doors provide quick and easy access to chilled goods. We recommend the IDS80 model for basic cold rooms operating in positive temperature ranges.
Leaf thickness: 80 mm
Leaf structure: Single sliding leaf with aluminium edges
Sliding rail type: Heavy-duty aluminium rail with overrun stops
Wheels: Ball bearing, reinforced, large dimension composite rollers
Door openers: Composite fix handles up to 1100 mm, stainless steel lever handle above 1100 mm
Standard leaf surface: Galvanized steel RAL9002 arctic white powder coated
IDS80-2
double leaf sliding door
Recommended for positive temperatures
0 / +10 °C
Our double-leaf sliding door model, the IglooDoors® IDS80-2, with its 80 mm thickness, provides energy-efficient thermal insulation for cold rooms maintained between 0 and +10°C. This bi-parting sliding door offers swift and straightforward access to chilled goods while facilitating the movement of particularly large items within the refrigerated space.
Leaf thickness: 80 mm
Leaf structure: Double leaf with aluminium edges
Sliding rail type: Heavy-duty aluminium rail with overrun stops
Wheels: Ball bearing, reinforced, large dimension composite rollers
Door openers: Composite fix handles up to 1100 mm, stainless steel lever handle above 1100 mm
Standard leaf surface: Galvanized steel RAL9002 arctic white powder coated
IDS100
single leaf sliding door
Recommended for negative temperatures
-18 / -22 °C
Our deep freeze doors are equipped with enhanced thermal insulation. We recommend our IglooDoors® IDS100 sliding doors for freezers operating in negative temperature ranges, specifically between -18 and -22 degrees Celsius. With a door panel thickness of 100 mm, the IDS100 sliding door ensures superior thermal insulation while providing easy access to products stored in the freezer chamber.
Leaf thickness: 100 mm
Leaf structure: Single sliding leaf with aluminium edges and self-regulating heating cable
Sliding rail type: Heavy-duty aluminium rail
Wheels: Ball bearing, reinforced, large dimension composite rollers
Door openers: Composite fix handles up to 1100 mm, stainless steel lever handle above 1100 mm
Standard leaf surface: Galvanized steel RAL9002 arctic white powder coated
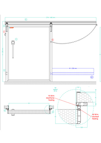
IDS150
single leaf sliding door
Recommended for freezer and blast freezer temperatures
-25 / -40 °C
Freezer doors require enhanced durability to withstand extreme temperatures. The IDS150 model is a robust door, specifically designed for freezers subjected to intense cooling, blast, and deep freezing processes. With a substantial 150 mm thick leaf, it is exceptionally equipped to endure harsh, cold environments. Opt for this sliding door for freezers operating in the range of -25 to -40 degrees Celsius, ensuring reliability and efficiency in the most demanding conditions.
Leaf thickness: 150 mm
Leaf structure: Single-leaf sliding door with aluminium edges, self-regulating heating cable, heated door frame, and safety heating strips
Sliding rail type: Heavy-duty aluminium rail
Wheels: Ball bearing, reinforced, large dimension composite rollers
Door openers: Stainless steel lever handles
Standard leaf surface: Galvanized steel RAL9002 arctic white powder coated
Available sizes
Our single-leaf sliding cold storage doors are available in a maximum width of 2900 mm and a height of up to 3500 mm. For smaller requirements, we offer doors suited for openings as small as 900*1800 mm. We are committed to custom manufacturing doors to any dimensions within these specified ranges.
Common sizes
- 900×1900
- 900×2100
- 1300×2100
- 1500×2300
- 1800×2000
- 1900×2300
- 2000×2500
- 2500×2500
Options
- Stainless steel surfaces
- Meat rail version
- Automatic motor operation with safety features
- Integrated window
- Heated threshold with thermal break
Do you need a threshold or not?
A threshold-free design is common in most sliding door cold rooms, where the exterior and interior surfaces are level, ensuring smooth passage. However, in some specific cases, a threshold may be necessary. This occurs when the cold room has a raised insulated floor, requiring the sliding door to close against this height difference.
Optimize door opening orientation
Choosing the opening direction of a cold room door is an important consideration that significantly affects usability. It is essential to take into account the direction in which the door opens to ensure it does not obstruct workflows and fits well with the layout of the space.
Gallery
Downloads
Related articles
Install IglooDoors® cold room doors in 6 simple steps – Video Tutorial
Installing walk-in cooler doors only requires some basic know how in the industry and can be done in 6 simple steps. We value our customers and want to make the…
Everything you need to know about IglooDoors® cold room doors
Cold room doors are perfectly sealed and highly insulated doors for industrial and commercial refrigerators and cold rooms. We have designed every detail of IglooDoors® walk-in cooler doors to fit…















